Sell
Building plot with license and panoramic views towards the sea and Palma city
Palma / Son Vida
Seaside
10 minutes
Airport
more than 30 minutes
Sun orientation: southeast
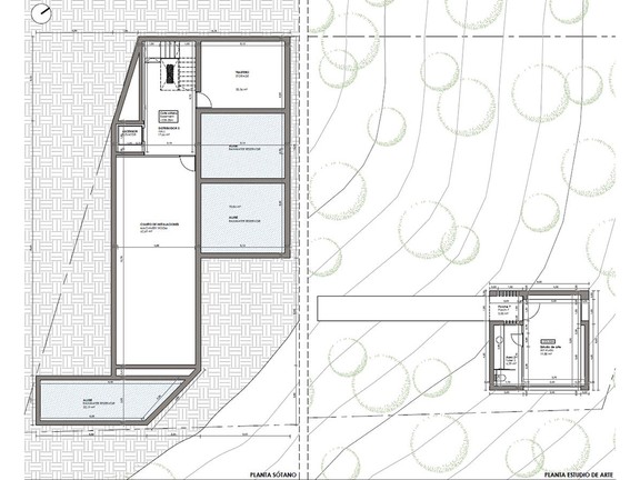
This building plot is located in new Son Vida, the building license is in place, so it is possible to start constructing immediately. Water connection, sewage and electricity are available through the public road.
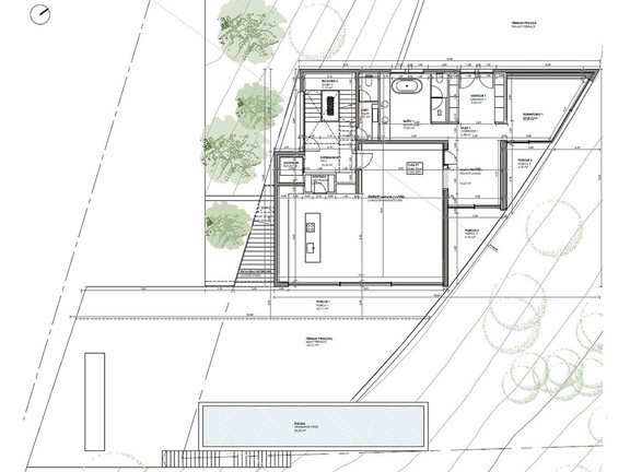
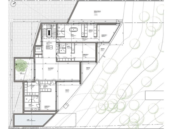
The total plot size of 2.123 m² allows a 33% construction of the total plot area for a single family villa with two normal living floors and a basement which could be suitable for a garage or a Spa area.
Son Vida - a suburb of Mallorca´s capital city Palma, also known as the Beverly Hills of Mallorca - is one of the most desirable and prestigious residential areas of the island. At the entrance of this luxury residential area there is a 24 hours security service. Furthermore, there are three golf courses, two exclusive hotels as well as two luxury yacht harbors nearby: Puerto Portals and the Club Náutico from Palma. The heart of Palma´s old town with its fashion boutiques and coffee shops invites to linger and is located in only a ten-minute drive away.
Amenities
Good Road Access

